EN/ES
MASTERPLAN
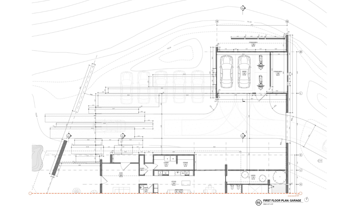
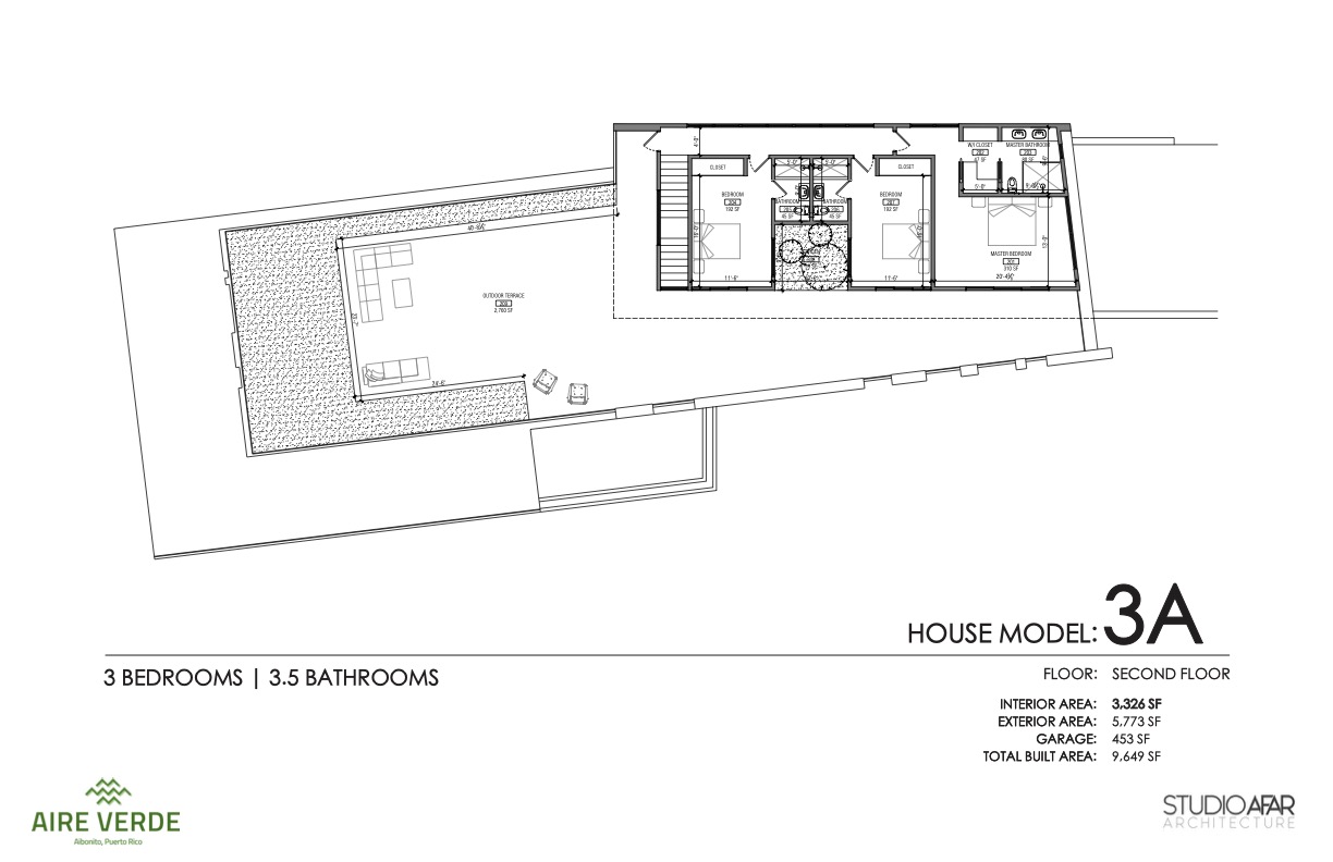
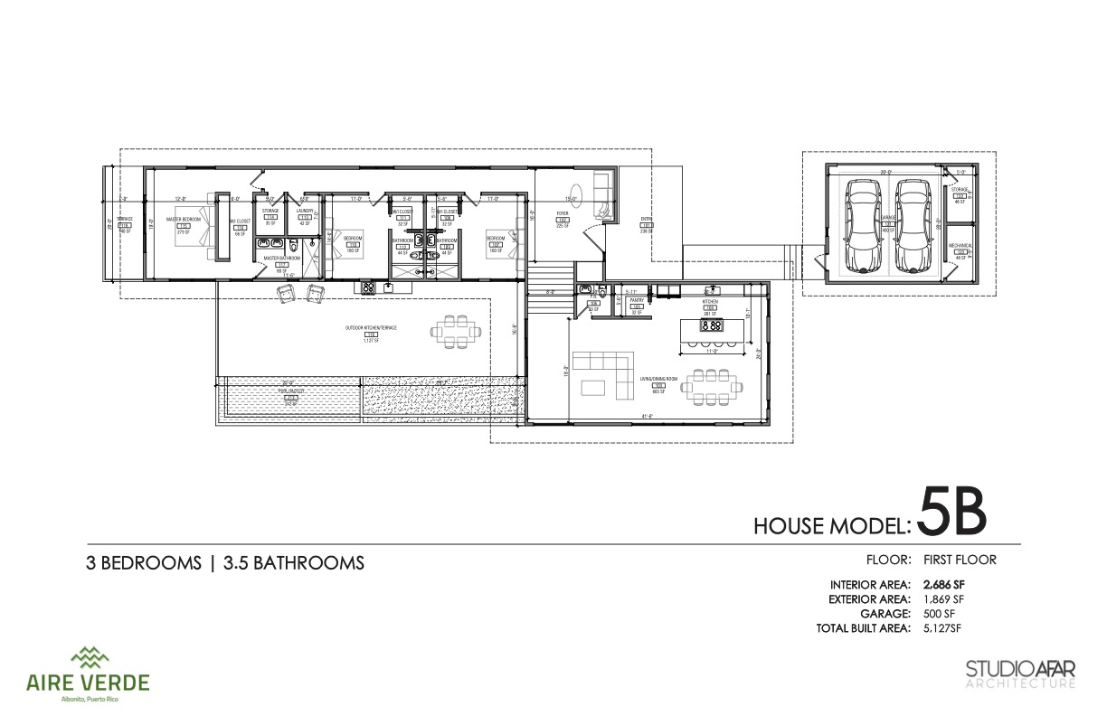
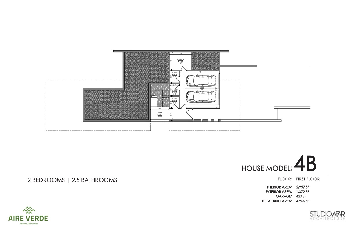
FLOORPLANS
SITE UNDERSTANDING
CONTACT